您现在的位置是:首页 > 创意融合
图解瓦工木工|装饰装修工程施工工艺具体做法,非常值得收藏!
岁月留金阁
2025-06-04【创意融合】259人已围观
简介一、地面部分1、地面水泥砂浆找平施工工艺节点大样图(1)施工工序:基层清理→弹线→贴灰饼→刷素水泥浆→水泥砂浆找平→养护重点说明:(1)配制水泥砂浆应用硅酸水泥、普通硅酸盐水泥,其标号不小于32.5MPa。严禁混用不同品种、不同标号的水泥,采用中砂搅拌;找平层砂浆的体积配合比为1:3,强度等级不应小...

一、地面部分
1、地面水泥砂浆找平施工工艺

节点大样图
(1)施工工序:
基层清理→弹线→贴灰饼→刷素水泥浆→水泥砂浆找平→养护
重点说明:
(1)配制水泥砂浆应用硅酸水泥、普通硅酸盐水泥,其标号不小于32.5MPa。严禁混用不同品种、不同标号的水泥,采用中砂搅拌;找平层砂浆的体积配合比为1:3,强度等级不应小于M15。
(2)根据±0.000m标高扣减饰面构造厚度来确定地面找平标高(设计有要求的按设计要求确定),并在四周墙脚弹线;水泥砂浆找平层的厚度不应小于20mm。
(3)同一房间的找平层应一次性施工完成,不得留置施工缝和接槎接头。
2、地面石材铺贴施工工艺

节点大样图
(1)施工工序:
地面清理→试拼→水泥浆结合层→铺贴石材→养护→晶面处理
重点说明:
(1)石材排版图深化前须核对现场尺寸,厂家与项目部共同完成图纸深化,经项目部核对无误后下单生产。
(2)厂家应预先对石材毛板的颜色、纹理等进行挑选,按照排版图的顺序和尺寸进行加工,根据颜色、纹理一致的原则,对石材进行试拼、调整和编号(编号与排版图一致)。
(3)石材须做六面防护,石材六面防护须纵、横各一遍,待第一遍防护干后再刷第二遍防护,干后进行下道工序。
(4)石材在铺贴前应进行试拼,出现颜色或纹理错乱时应进行挑选,必要时要求厂家更换。
(5)深色石材采用32.5MPa普通硅酸盐水泥混合中砂或粗砂,(含泥量不大于3%)1:3配比;浅色系列石材采用32.5MPa白水泥砂浆掺白石屑1:3配比。
(6)大理石在铺贴前应铲除背后网格布,并补刷石材防护剂,晾干后进行铺贴;若质地较为松脆的石材,则须在工厂对石材背面去网后做背胶或背砂处理,到场后直接铺贴。
(7)表面平整度:1mm;缝格平直:1mm;接缝高低:0.5mm;踢脚线上口平直:1mm;板块间隙宽度:1mm。
3、地面釉面瓷砖铺贴施工工艺

节点大样图
(1)施工工序:
地面清理→瓷砖浸水湿润→水泥砂浆结合层→安装标准块→铺贴地面砖→勾缝→清洁→养护
重点说明:
(1)铺贴釉面陶瓷地面砖前,应先将陶瓷地面砖浸泡阴干(浸泡至不起气泡即可取出阴干)。
(2)同一空间饰面砖色泽应一致、套割边缘应整齐,大面无小块,开孔位置尺寸应正确,无裂痕和缺损;釉面瓷砖无掉角、爆边,结合处无三角洞及方形洞。
(3)墙面基层先处理平整,粘贴层厚度控制在7-10mm为宜,采用专用瓷砖粘贴剂粘贴牢固(单块空鼓小于15%,且每自然间不超过总数的5%)。
(4)地砖表面平整度误差不得超过1mm(用2米靠尺和塞尺检查);缝格平直误差不得超过1.5mm(拉5米线和钢尺检查);接缝高低差误差不得超过0.5mm(用直尺塞尺检查);踢脚线上口平直误差不得超过1mm(拉5米线和钢尺检查);板块间隙宽度误差不得超过1mm(用钢尺和塞尺检查)。
(5)排砖应符合设计要求,当设计无要求时,应根据现场实际情况进行调整,避免出现板块小于整砖1/3边长的边角料。
4、地面抛光砖铺贴施工工艺

节点大样图
(1)施工工序:
处理基层→弹线→预排→摊铺水泥砂浆→安装标准块→铺贴地面砖→勾缝→清洁→养护
重点说明:
(1)抛光砖铺贴前须先进行预排,检查纹路、核查方正度,避免铺贴后的纹路错乱、缝隙不均匀。
(2)同一空间饰面砖色泽应一致、套割边缘应整齐,大面无小块,开孔位置尺寸应正确,无裂痕和缺损;墙砖无掉角、爆边,结合处无三角洞及方形洞。
(3)地面基层先处理平整,粘贴层厚度控制在7-10mm为宜,采用专用瓷砖粘贴剂粘贴牢固(单块空鼓小于15%,且每自然间不超过总数的5%)。
(4)地砖表面平整度误差不得超过1mm(用2米靠尺和塞尺检查);缝格平直误差不得超过1.5mm(拉5米线和钢尺检查);接缝高低差误差不得超过0.5mm(用直尺塞尺检查);踢角线上口平直误差不得超过1mm(拉5米线和钢尺检查);板块间隙宽度误差不得超过1mm(用钢尺和塞尺检查)。
(5)排砖应符合设计要求,当设计无要求时,应根据现场实际情况进行调整,避免出现板块小于整砖1/3边长的边角料。
5、地毯铺设施工工艺

节点大样图
(1)施工工序:
基层处理→地毯剪裁→钉倒刺板挂毯条→铺设防潮垫→铺设地毯→细部处理及清理
重点说明:
(1)地毯加工前应明确材料含量(多少百分比羊毛,是否分色)、加工工艺(圈绒、割绒、阿克明斯)、绒高(羊毛高度)、胶垫容重(k/m2)。
(2)铺设地毯前地面须采用水泥砂浆找平处理(厚度根据地毯与胶垫确定落差)待水泥砂浆完全干透后,方可铺设地毯。
(3)地毯表面应平服,无起鼓翘边,图案拼花应细,绒面顺光应一致。
(4)地毯与大理石不得直接拼接,可采用过渡材料进行拼接收口(如:不锈钢条、铜条等),收口处绒毛应高出5mm。
(5)地毯铺设完成后应立即采取成品保护措施。
(6)地毯与踢脚线、墙边、柱子收口处周围应顺直、应压紧。
6、实木地板铺设施工工艺
(1)施工工序:
安装地龙骨→撒防蛀粉→安装防潮多层板→铺贴防潮膜→铺实木地板
重点说明:
(1)地板安装时要留伸缩缝,地板与墙壁之间要预留出10mm左右的地板伸缩缝。地板间缝隙不超过1mm,密度较高的地板铺设时,每块应留有0.4mm的间隙,以防日后起拱。实木地板之间要留伸缩缝,预留潮湿季节木地板膨胀空间,多层实木地板和强化复合地板则可以无缝拼接。
(2)地板下须铺设防潮膜,接口处互叠,用胶布粘贴防止灰尘水汽进入。
(3)木搁栅应弹线;应按300~400mm距离打孔,预埋丝杆;木搁栅应按300~400mm开沉头孔,应调整丝杆、调平龙骨基层;固定不得损坏预埋管线,木搁栅与墙缝隙30mm。
(4)踢脚线表面应光滑,接缝应严密;踢脚线上口平齐3mm/5m、踢脚线与面层的接缝1mm。
(5)板面缝隙宽度0.5mm/钢尺、表面平整度2mm/2m、面板拼缝应平直3mm/5m、相邻板材高度差1mm/钢尺。
7、卫生间地漏安装工艺
(1)施工工序:
定位→排水管道安装→预埋
重点说明:
(1)楼板开孔须大于排水管径40mm,孔壁须进行凿毛处理。须用专用模具支撑,浇捣须用水泥砂浆分两次以上封堵浇捣密实。
(2)地漏的排水管口标高应根据地漏型号确定,使排水管与地漏连接紧密。
(3)地漏安装时周边的砂浆应填充密实。
(4)地漏、排水管直径须符合排水流量要求,排水管须设置存水弯。
(5)地面找坡符合排水要求,找坡率3‰-5‰。
(6)地漏的顶面标高应低于地面1mm,地漏水封深度应≥50mm。
8、沐浴房地面石材施工工艺

(1)施工工序:
地面清理→水泥浆结合层→铺贴石材→养护→晶面处理
重点说明:
(1)淋浴房地面铺贴石材前须先作挡水槛,挡水槛完成面高度低于石材地面30mm,挡水槛采用混凝土砂浆浇筑,挡水槛与地面接触位置须作弧形翻边。
(2)防水施工须先对档水槛阴角处进行柔性防水处理,待档水槛阴角防水干透后再进行大面防水施工。
(3)沐浴房门槛石材须采用湿铺工艺进行铺贴,预防淋浴用水落地后向外渗透。
二、墙柱面部分
1、轻钢龙骨石膏板隔墙施工工艺

(1)施工工序:
隔墙放线定位→安装天地龙骨→安装竖向龙骨→安装横向龙骨→龙骨内敷设隐藏管线→门洞口、窗台口加固→封一面石膏板→填充隔音棉→进行隐蔽验收→再封加一面石膏板
重点说明:
(1)常规竖龙骨为3000mm,如超过3000mm或小于3000mm建议采用定制型竖龙骨。
(2)门洞口、窗口内侧须预埋基层板材加固,并做好防腐、防霉、防火处理。
(3)天地龙骨安装前先把橡胶垫安装在天地面线位上,再将天地龙骨放在橡胶垫上安装。
(4)未找平的地面封石膏板时下口150mm处应先安装水泥纤维压力板(防潮、防水),而后再封石膏板,封第二层石膏板时下口不应直接落地,应平地脚线上口高度安装。
(5)自攻螺丝应陷入板材表面0.5深度为宜,且面纸不应破裂暴露石膏。
(6)石膏板与石膏板接口预留3-5mm缝隙为宜。
(7)封纸面石膏板打螺丝前须进行弹线。
(8)高度超过4m隔墙,应用100系列隔墙龙骨,或者按设计要求增加钢架。
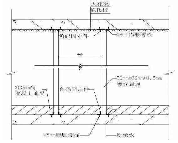
2、卫生间镀锌方通隔墙施工工艺

(1)施工工序:
隔墙放线定位→焊接钢架→焊口防锈处理→捣制混凝土地梁→封硅酸钙板→挂网→水泥砂浆批荡→涂刷防水涂料→铺贴石材
重点说明:
(1)方钢骨架采用镀锌成品,焊接点涂刷防锈漆。
(2)镀锌方通两侧每隔600mm钻透气孔。(避免电焊时高温没透气孔造成镀锌方通变型)
(3)钢架焊接完成后在底部浇筑300mm高混凝土地梁,宽度根据设计要求。
(4)内层封硅酸钙板采用自钻螺丝固定,然后进行挂网,挂网采用自然平整安装法(即不要太平整,要有一定的起拱度)。
(5)水泥砂浆批荡,先在硅酸钙板上刷一层加胶状的素浆,然后再进行水泥砂浆批荡,水泥砂浆批荡层控制在距石材背面7-10mm。
(6)水泥砂浆批荡层干透后进行防水施工。
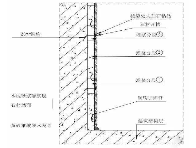
3、石材灌浆施工工艺

(1)施工工序:
石材排板放线→预排石材→板材固定→灌桨→嵌缝
重点说明:
(1)施工工序:石材采用湿挂灌浆施工时,固定石材的钢筋网应与预埋件连接牢固;每块石材与钢筋拉接点不得少于4个;拉接用铜丝具有防锈性能。
(2)施工工序:深色石材采用32.5MPa普通硅酸盐水泥混合中砂或粗砂,(含泥量不大于3%)1:3配比。浅色系列石材采用32.5MPa白水泥砂浆掺白石屑1:3配比。
(3)施工工序:灌浆前应用填缝材料临时封闭板缝,避免漏浆;灌浆时应分层进行,每层灌浆高度且不超过板高的1/3.插捣密实,初凝后继续灌注,灌浆距板材上口50mm处为止。
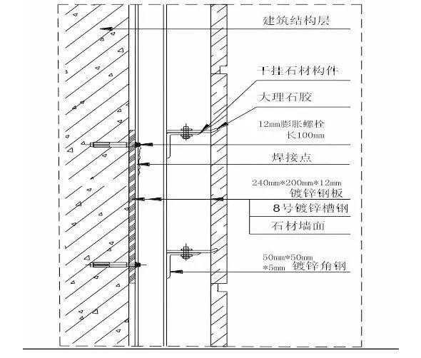
4、墙面石材干挂施工工艺

(1)施工工序:
石材排板放线→安装钢骨架→石材安装→打胶收口
重点说明:
(1)所有型钢规格符合国家标准,热镀锌处理,焊接部位采用防锈处理。不锈钢石材连接挂件采用钢号202以上、沿海地区采用钢号304。
(2)2500mm高以内的墙体,竖向须采用5﹟镀锌角钢,横向采用40mm×40mm镀锌角钢,间距根据石材的横缝排版确定,2500mm高以上的墙体,竖向须采用8﹟镀锌槽钢,横向采50mmx5mm型镀锌角钢,间距根据石材的横缝排版确定。
(3)应按石材排版图进行现场钢架布置;挂件与钢架连接应正确(反向、焊接)
(4)干挂石材单块面积一般不超过1.5平方,室内干挂石材厚度应大于20mm,室外干挂石材厚度应大于25mm;石材板面较大且薄的板材应在背面粘加固背条,防止翘曲变形;干挂石材墙面无透胶污染。
(5)干挂石材孔、槽的数量、深度、位置、尺寸应符合设计要求;避免钻孔或开槽加工时出现位置不正、数量不足、深度不够或孔槽壁太薄等质量问题。
(6)立面垂直度1mm/2m垂直检测尺;表面平整度1mm/2m靠尺和塞尺;阴阳角方正1mm/直角检测尺;接缝高低差0.5mm/钢直尺和塞尺;接缝直线度1mm/拉5m线和钢直尺,不足5m拉通线;接缝宽度1mm钢直尺。
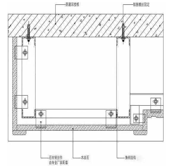
5、顶面石材干挂施工工艺

(1)施工工序:
石材排板放线→安装钢骨架→石材安装→打胶收口
重点说明:
(1)所有型钢规格符合国家标准,热镀锌处理,焊接部位采用防锈处理。不锈钢石材连接挂件采用钢号202以上、沿海地区采用钢号304。
(2)应按石材排版图进行现场钢架布置;挂件与钢架连接应正确(反向、焊接)
(3)干挂石材单块面积一般不超过1.5平方,室内干挂石材厚度应大于20mm,室外干挂石材厚度应大于25mm;石材板面较大且薄的板材应在背面粘加固背条,防止翘曲变形;干挂石材无透胶污染。
(4)干挂石材孔、槽的数量、深度、位置、尺寸应符合设计要求;避免钻孔或开槽加工时出现位置不正、数量不足、深度不够或孔槽壁太薄等质量问题。
(5)顶面石材背面周边退进5mm,四周铲网40mm宽,背不小于3#镀锌扁铁,采用石材干挂AB胶粘贴,当石材边长大于600mm时中间须增加扁铁与周边扁铁连接成网状。
(6)顶面石材两端连接采用干挂件挂扣(石材侧面挂件位开槽),采用石材干挂AB胶粘结;石材边长大于600mm时中段点再用石材干挂AB胶将挂件与扁铁粘结;末端石材须搁置在墙面上,采用石材干挂AB胶粘结牢固;表面平整度1mm/2m靠尺和塞尺。
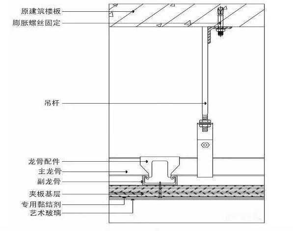
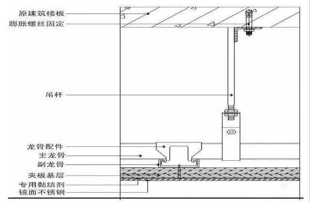
6、吊顶玻璃/镜子安装施工工艺

(1)施工工序:
基层制作→放线→玻璃/镜子加工→安装玻璃/镜子→打胶收边→清理
重点说明:
(1)基层采用多层板(背面做好三防处理)制作,须平整牢固,平整度允许误差1mm,避免安装不平整造成破损,安装前基层必须清理干净。
(2)背面先贴好专用保护膜,周边退进10mm黏贴3mm厚海绵贴(宽度视玻璃/镜子尺寸而定),长边相隔300mm条状黏贴3mm厚海绵贴,起到定位校正作用。
(3)玻璃/镜子面无固定件安装的采用结构胶粘接在基层板上,胶干前下撑支架固定,胶干牢固后拆除支架。
(4)玻璃/镜子安装完成后进行保洁时严禁使用酸性洗涤剂或含研磨粉的去污粉清洗。
(5)玻璃/镜子采用中性耐候胶收口。
(6)玻璃/镜子面有设备安装时,须测准开孔位置及尺寸,周边为防止镜子开裂,背面四周采用AB胶黏结。
7、墙面瓷砖铺贴施工工艺

(1)施工工序:
处理基层→弹线→瓷砖浸水湿润→摊铺水泥砂浆→安装标准块→铺贴地面砖→勾缝→清洁→养护
重点说明:
(1)铺贴瓷砖前须先检查原墙体是否存在空鼓现象。
(2)铺贴釉面陶瓷地面砖前,应先将陶瓷地面砖浸泡阴干。(浸泡至不起气泡即可取出阴干)
(3)同一空间饰面砖色泽应一致、套割边缘应整齐,大面无小块,开孔位置尺寸应正确,无裂痕和缺损;墙砖无掉角、爆边,结合处无三角洞及方形洞。
(4)粘贴应牢固(单块空鼓小于15%,且每自然间不超过总数的5%)
(5)排砖应符合设计要求,当设计无要求时,应根据现场实际情况进行调整,避免出现板块小于整砖1/3边长的边角料。
(6)立面垂直度1mm/2m垂直检测尺;表面平整度2mm/2m靠尺和塞尺;阴阳角方正2mm/直角检测尺;接缝高低差0.5mm/钢直尺和塞尺;接缝直线度1mm/拉5m线和钢直尺,不足5m拉通线;接缝宽度1mm/钢直尺。
1、轻钢龙骨石膏板吊顶施工工艺

(1)施工工序:
弹出天花完成面线→吊杆安装→安装主龙骨→安装沿边龙骨→安装次龙骨→龙骨调平→进行隐蔽验收→安装石膏板
重点说明:
(1)封板前天花内所有管线、消防设备等必须测试验收合格,石膏板才能进行安装,避免封板后出现线路不通、消防管道漏水等问题,造成成本增加。
(2)各类石膏板天花吊顶长度超过15m的应预留伸缩缝,且伸缩缝两边应设置独立的主副龙骨。
(3)封纸面石膏板打螺丝前须进行弹线。(石膏板拼接口须预留3-5mm缝隙)
(4)自攻螺丝安装应陷入板材表面0.5深度为宜,且不可切断纸面暴露石膏。
(5)天花吊杆超过1.5m时须增加反支撑,主龙骨按房间短跨长度起拱3‰~5‰。
(6)安装轻型吊灯的部位应预设400*400*18mm多层板,板面与龙骨面齐平,多层板采用8mm吊杆固定在楼板底及龙骨上,连接牢固。
(7)安装重型吊灯时,在未封板前预埋挂钩/挂链(根据灯具重量确定挂钩/挂链承载力)。
(8)在安装主副龙骨前应考虑灯孔、喷淋、风口、检修口等位置,避免安装设备时破坏主副龙骨。
2、金属板吊顶施工工艺
(1)施工工序:
弹线→安装沿边龙骨→安装吊挂杆件→安装次龙骨→安装罩面板→安装压条
重点说明:
(1)在检修口周围应设附加龙骨,附加龙骨采用铆钉固定。
(2)罩面板安装前天花内所有管线、消防设备等必须测试验收合格,罩面板才能进行安装。
(3)安装轻型吊灯的部位应预设400*400*18mm多层板,板面与龙骨面齐平,多层板采用8mm吊杆固定在楼板底及龙骨上,连接牢固。
(4)安装重型吊灯时,在罩面板安装前预埋挂钩/挂链(根据灯具重量确定挂钩/挂链承载力)。
(5)天花吊杆超过1.5m时须增加反支撑,主龙骨按房间短跨长度起拱3‰~5‰。
(6)板面无明显变形,弧形板曲面应柔顺,板面应洁净。
(7)边龙骨与板面及墙面接口应严密。
3、阴角槽施工工艺
重点说明:
(1)石膏板阴角槽:采用高密度中纤板,湿度较大地区可采用密度高的木质材料,按设计规格要求定制加工,安装前须做防潮处理。
(2)木制品阴角槽:按设计规格要求在木制品厂定制加工。
(3)石材阴角槽:按设计规格要求在石材厂定制加工。
(4)其它阴角槽:若阴角处两面材质不同,在容易加工的材质上开槽。
很赞哦!(97)
上一篇:古墨收藏诀窍